 
			 
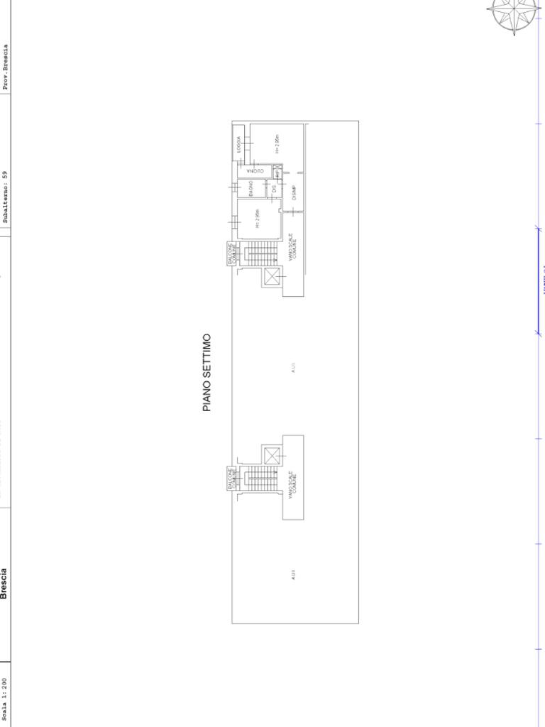
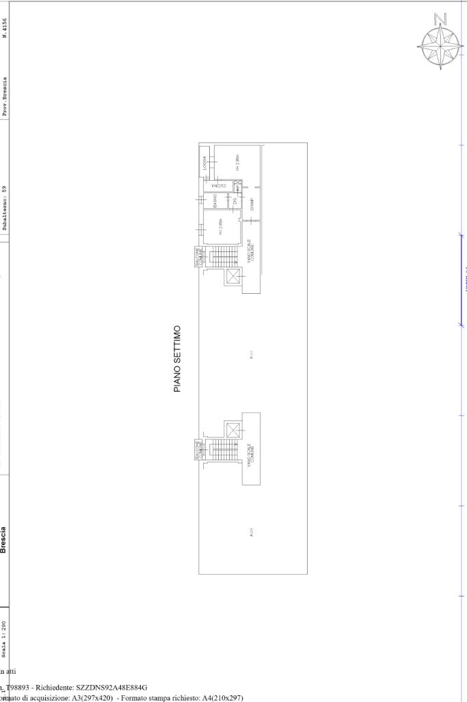
				BILOCALE RISTRUTTURATO AL 7° PIANO.
In ZONA CROCIFISSA, precisamente in Via Crocifissa di Rosa, a 3 minuti dal centro storico e 5 minuti dall'ospedale civile, proponiamo in vendita un bilocale al settimo piano di uno dei complessi più signorili della zona.
Il contesto condominiale edificato negli anni '60 e dotato di servizio di portineria, è stato rivisto nel tempo:
facciata rivista completamente nel 2025  e ascensore sostituito nel 2023.
ZONA GIORNO:
l'appartamento si sviluppa con un comodo ingresso che introduce alla luminosa zona living, esposta ad ovest, caratterizzata da uno sfogo esterno con un affaccio panoramico con una vista suggestiva che dona un'atmosfera unica all'abitazione.
Cucina attualmente separata dal soggiorno, con la possibilità di ricreare una zona living open space abbattendo il tramezzo che separa i due locali.
ZONA NOTTE:
La zona notte si sviluppa attraverso un raffinato disimpegno, contraddistinto da un pratico ripostiglio, che conduce ad un bagno finestrato dotato di moderna doccia walk-in, sanitari sospesi in ceramica e comodi spazi funzionali. A completare l’ambiente, una luminosa camera matrimoniale di 16 mq, con piacevole esposizione ad ovest.
L'immobile è stato oggetto di una  completa ristrutturazione tra il 2020/2021, che ha interessato gli impianti elettrico e idraulico, oltre alla sostituzione degli infissi con moderni serramenti a doppio vetro.
Sono stati invece mantenuti i pavimenti orginali in marmo, accuratamente lucidati e conservati in ottime condizioni.
Il riscaldamento è centralizzato dotato di teleriscaldamento, le spese condominiali ammontano a €1700,00 annui.
L'appartamento viene consegnato completo di cucina attrezzata con frigorifero,plafoniere/lampadari, arredo bagno e impianto di climatizzazione con split, uno posto nella zona giorno e il secondo posto nella zona notte.
Una spaziosa cantina, al piano seminterrato, completa la soluzione.
Ti interessa visionare l'immobile?