 
			 
				 
	 
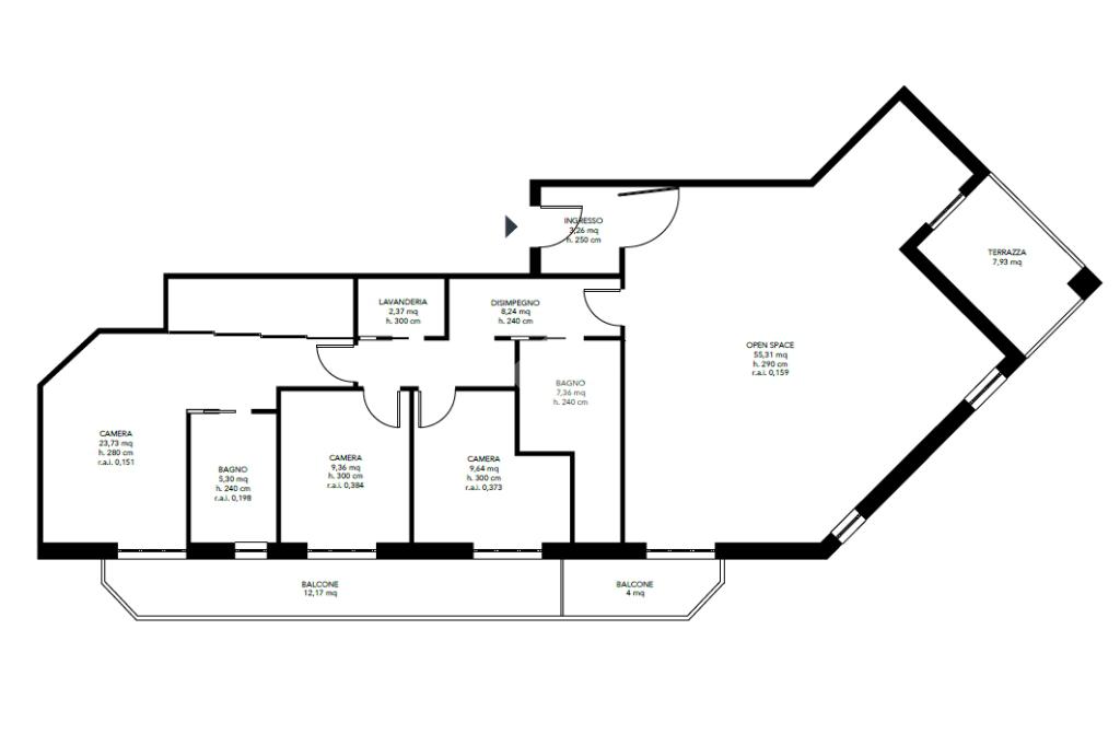
		Proponiamo in vendita spazioso pentalocale di 140 mq commerciali, da ristrutturare, situato al secondo piano di un signorile contesto condominiale servito da ascensore
L’abitazione si apre su un ampio atrio d’ingresso, che conduce alla cucina abitabile dotata di terrazza di circa 8 mq, e al luminoso soggiorno, ideale per accogliere la zona living e pranzo. Grazie alla tramezza che separa i due ambienti, è possibile realizzare un'ampia zona living open space con cucina a vista, sfruttando l'accesso diretto alla terrazza della zona giorno.
Questa soluzione renderebbe l'ambiente ancora più luminoso, funzionale e ideale per chi ama spazi aperti e conviviali.
Un funzionale disimpegno accompagna alla zona notte, composta da tre camere matrimoniali, una camera singola, due bagni finestrati e un comodo ripostiglio.
L’appartamento dispone di riscaldamento centralizzato con teleriscaldamento e termovalvole, mentre completano la proprietà un box auto singolo e un solaio all'ultimo piano.
Il condominio si presenta in buono stato grazie ai lavori già eseguiti negli ultimi anni:
Tetto rifatto nel 2018
Ascensore rinnovato nel 2019
Soffitto del garage sistemato nel 2024
Attualmente è in fase di elaborazione un preventivo di ristrutturazione, che consentirà ai futuri acquirenti di avere un’idea chiara dei costi e delle potenzialità di trasformazione.
Grazie alle ampie metrature e alla pianta regolare, l’immobile offre diverse possibilità di personalizzazione:
Frazionamento in due unità abitative, ideali come investimento, con la possibilità di ricavare due bilocali di generosa metratura oppure due piccoli trilocali funzionali.
Soluzione ideale per l’affitto a studenti o professionisti, data la vicinanza ai principali servizi e alla rete di trasporti.
Una proposta interessante per chi cerca una casa dagli ampi spazi, personalizzabile e con ottimo potenziale di rivalutazione.
Ti interessa visionare l'immobile?